Public Registry 5589.00 - Rubber Ducky Resort and Campground Ltd. - Sewage Treatment Plant
Latest information was posted June 19th 2014
Summary - posted June 19th 2014
Environment Act Licence - posted June 19th 2014
Environment Act Proposal
Environmental Assessment Report
WS-1 Holding Tank Layout
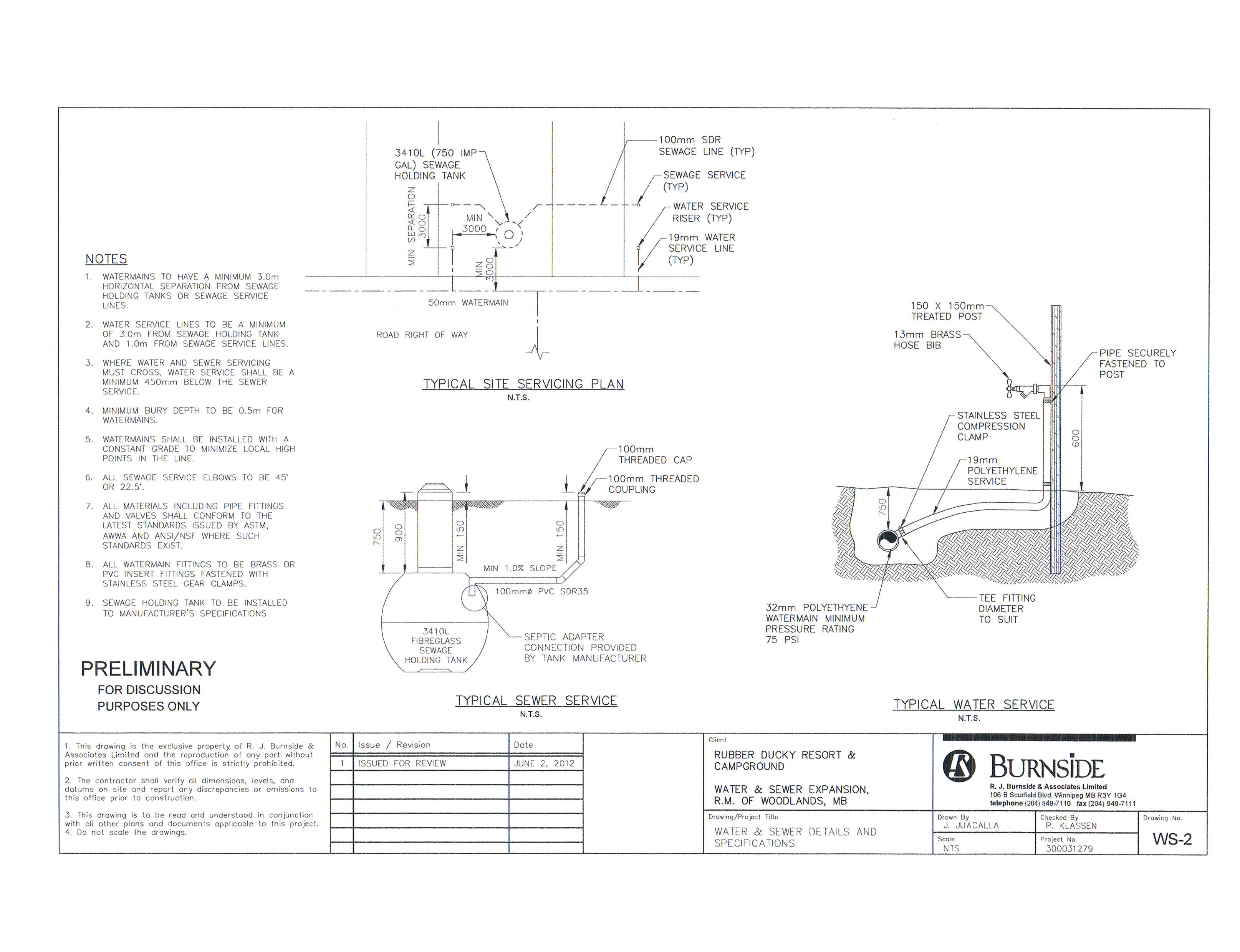
WS-2 Holding Tank Installation
Location Map
Aerial Photo
Municipal Map
Land Titles of Subject Property
Land Title 1
Land Title 2
Land Title 3
Land Title 4
Design Brief
Environmental Approvals Contact: Robert Boswick


