Managing Change in Rural Manitoba
A Manual for Conservation Subdivision Design
This manual explains in a straightforward way how to design rural subdivisions that protect open space, woodlands, natural areas, wildlife habitats, and wetlands. Author Randall Arendt is a foremost expert of “conservation planning” across North America. He provides an alternative to standard two-acre or 5-acre lot subdivisions, by protecting the community’s rural character and permanently protecting up to half the open space of any given site.


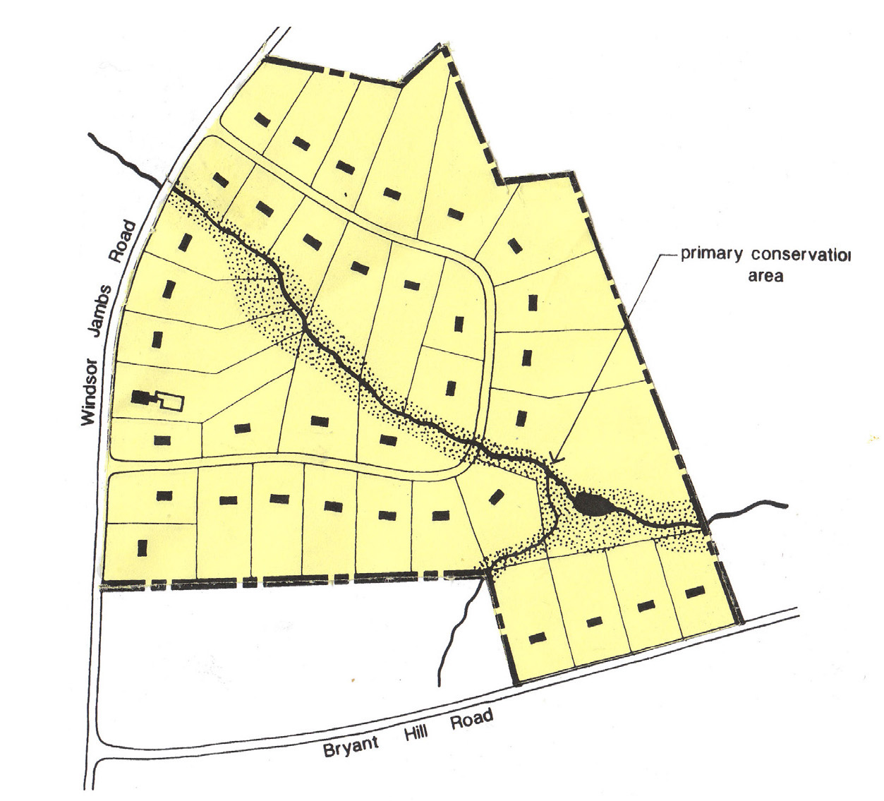
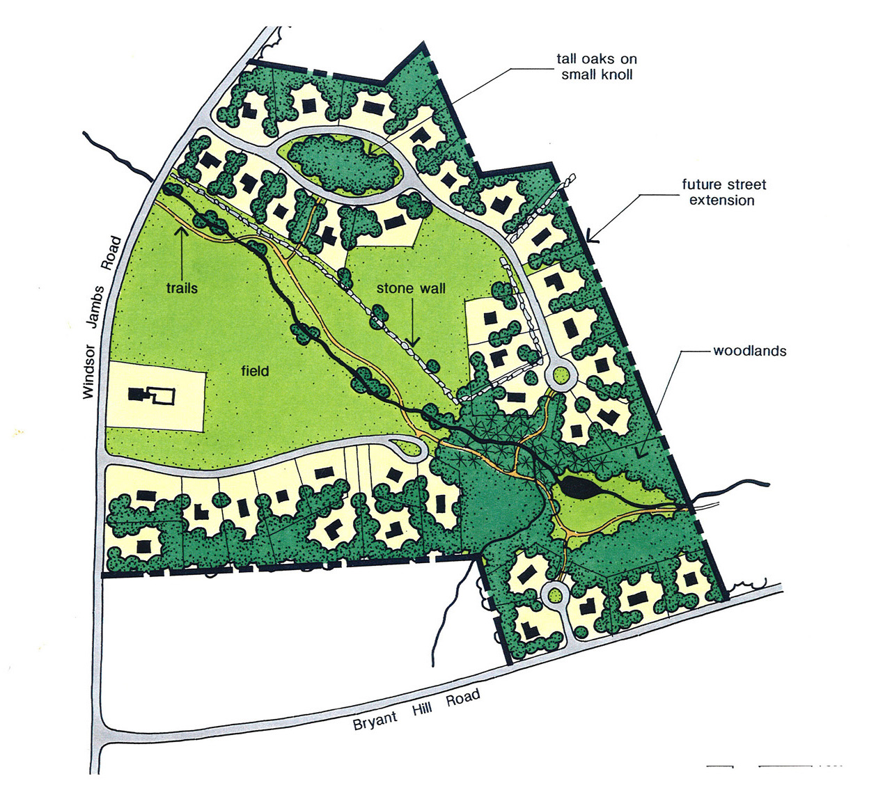
Conventional Conservation
The differences of Conventional and Conservation Design - In a standard subdivision design, every acre of land is converted to suburban house lots or streets, filling the once-rural public viewshed from the road bordering the property, and eliminating any future rural or recreational uses. The conservation design helps to protect the community’s rural character and permanently preserves half the upland acreage, which is also able to incorporate rain gardens to recharge local aquifers, preserve open views from every house, and offer opportunities for a trail network.
A Manual for Conservation Subdivision Design
Managing Change in Rural Manitoba - A Manual for Conservation Subdivision Design was produced in partnership with the Red River Planning District. Funding for the manual provided by Municipal Relations. © November 2014 by Randall Arendt. No part of this manual may be reproduced without the written permission of the author or his assigns.

